Makelaars met meer…
Home
Aanbod
Nieuwbouw
Verkopen
Aankopen
Taxatie
Hypotheek
Over ons
Contact
Ons Team
Nieuws
Vacatures
Contact
27 juni 2025
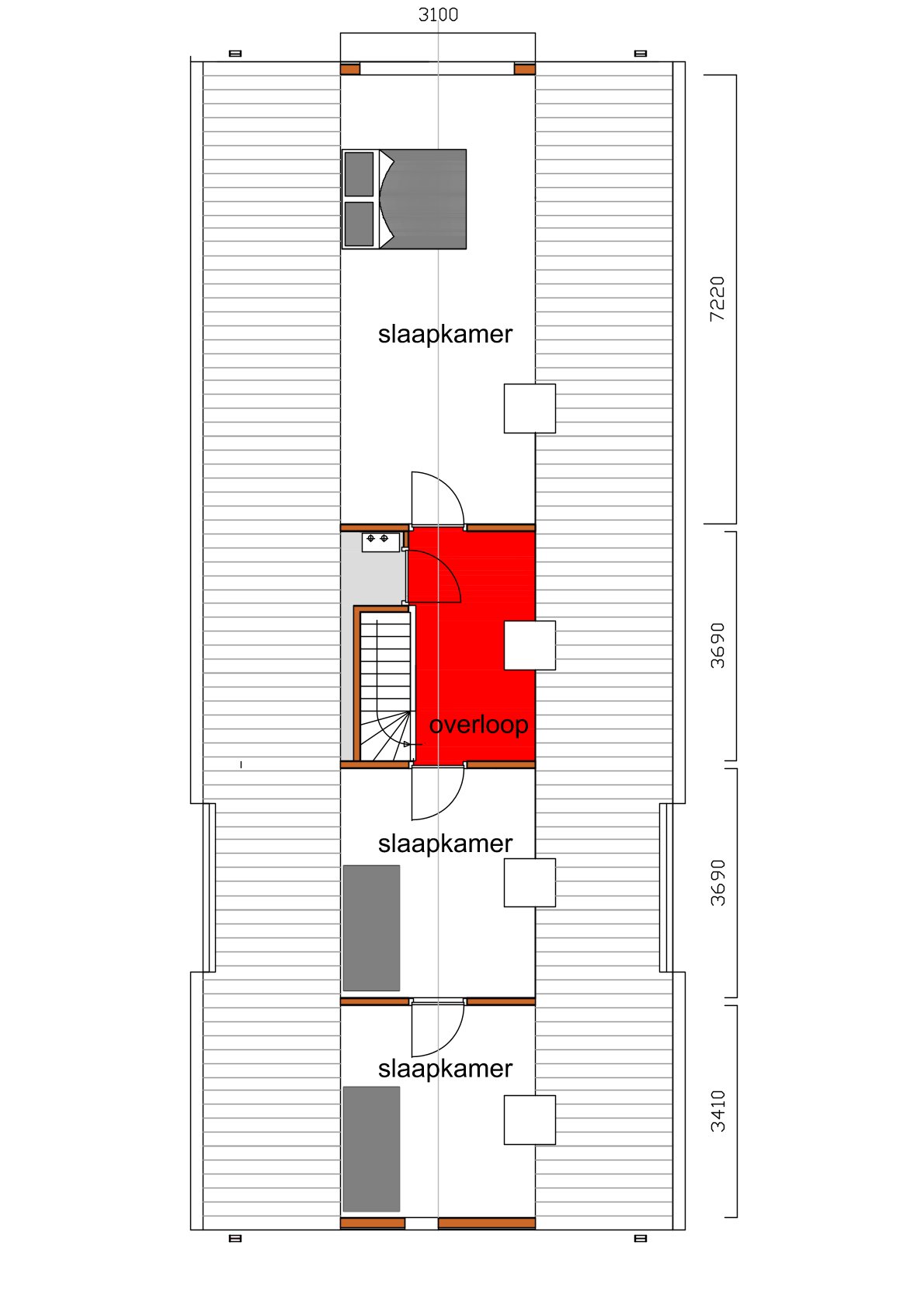
Keijenborg – Olde Kaste 4A – Plattegrond