Gaanderen – Warnersstraat 4, € 895.000,- k.k.
- Aantal kamers
- 10
- Woonoppervlakte
- 326 m2
- Bouwjaar
- 1979
Soms kom je van die woningen tegen die je keer op keer blijven verbazen. Dit huis aan de Warnersstraat 4 is daar hét voorbeeld van. Van de royale leefruimtes binnen tot de prachtige tuin met zwembad en rietgedekt poolhouse buiten: hier is écht aan alles gedacht.
Ligging
De Warnersstraat is een rustige straat, vlak bij supermarkten, winkelcentrum ’t Ganderije, basisschool, openbaar vervoer en sportfaciliteiten. En misschien wel het mooiste: schuin tegenover de woning loop zó het bos in. Ideaal dus voor wandelaars en hondenbezitters.
Energiezuinig en comfortabel wonen
De woning is van binnen en buiten goed onderhouden en voorzien van vloerverwarming op de begane grond, volledige HR-beglazing, dak- en spouwmuurisolatie en drie airco’s voor een aangenaam binnenklimaat in elk seizoen. Dankzij deze duurzame voorzieningen beschikt de woning over een energielabel A – comfortabel én energiezuinig wonen dus!
Binnen
Je komt binnen in een lichte hal met moderne toiletruimte, trapopgang én toegang tot het souterrain. De woonkamer is een sfeervolle kamer-en-suite met aan de voorzijde een zitgedeelte (met open haard en airco) en aan de andere zijde, achter de schuifdeuren, een fijne lees- of werkhoek.
De royale leefkeuken vormt het hart van het huis: een moderne inbouwkeuken in U-opstelling met hardstenen werkblad en enkele inbouwapparatuur. Denk aan een quooker, brede inductiekookplaat met afzuiging, magnetron en oven. Er is een barretje om snel te ontbijten of de krant te lezen én ruimte voor een grote eettafel waar je eindeloos kunt tafelen met vrienden en familie. Via de schuifpui stap je zo het terras op.
Aansluitend vind je de bijkeuken met handige kastenwand, provisieruimte en de aansluitingen voor de wasapparatuur. Van daaruit loop je door naar de grote garage met vliering (bereikbaar via een vlizotrap), verwarming, elektra, gootsteen en dubbele deuren naar de oprit.
En dan het souterrain: een ware bonus met meerdere ruimten die je naar eigen wens kunt invullen. Denk aan een thuisbioscoop, mancave, chillplek voor de kinderen, fitnessruimte of gewoon als extra opslag. De technische installaties (cv-ketel, boiler en heteluchtinstallatie) zijn hier ook netjes ondergebracht.
Boven
Op de eerste verdieping geeft de ruime overloop met airco toegang tot drie slaapkamers. De ouderslaapkamer heeft een eigen walk-in-closet / kleedkamer met wastafelmeubel, één van de kamers aan de achterzijde beschikt over een balkon en de andere kamer over een inbouwkast. De badkamer is luxe en stijlvol uitgevoerd in wit en antraciet en voorzien van een dubbel wastafelmeubel, ligbad met jetstreams én ingebouwde tv, inloopdouche en toilet.
De tweede verdieping biedt nog eens twee slaapkamers, waarvan één met inbouwkast en één met airco.
Buitenleven
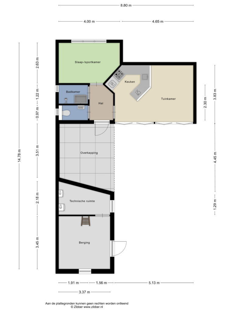
De tuin is een waar paradijs. Op het diepe perceel van 939 m² vind je meerdere terrassen, waarvan twee overdekt. Het terras direct achter de woning heeft bovendien een lamellendak dat open kan (geplaatst in 2023), én elektrische screens aan de zijkant, zodat je altijd comfortabel buiten zit. De ware eyecatcher is het zwembad met elektrisch bedienbare afdekking en een rietgedekt poolhouse. Dit poolhouse is volledig uitgerust met een zitkamer, open keuken, toilet, badkamer met douche en wastafelmeubel, een slaap-/sportkamer, technische ruimte en een overdekt terras. Een heerlijke plek om te ontspannen en te genieten met volop privacy of bijvoorbeeld te gebruiken voor het ontvangen van logees. Goed om te weten is dat er een puntstuk met grondwaterpomp aanwezig is.
Aan de voorzijde is er plek voor circa vier auto’s op de eigen oprit.
Kortom: dit is geen standaard woning, maar een compleet en verrassend woonparadijs waar binnen én buiten alles klopt.
Let op:
De genoemde scherpe prijs betreft een BIEDEN VANAF PRIJS. Biedingen vanaf dit niveau zullen door verkoper serieus in overweging genomen worden.
Meer informatie over dit object
Gaanderen – Warnersstraat 4, € 895.000,- k.k.
Kenmerken
Overdracht
- Koopprijs
- € 895.000,- k.k.
- Status
- Beschikbaar
- Aanvaarding
- In overleg
Bouw
- Huidig gebruik
- Woonruimte
- Bouwvorm
- Bestaande bouw
- Energielabel
- A
- Bouwjaar
- 1979
Oppervlakte & inhoud
- Woonoppervlakte
- 326 m2
- Perceel oppervlakte
- 939 m2
- Inhoud
- 1.309 m3
- Oppervlakte externe bergruimte
- 27 m2
Indeling
- Aantal kamers
- 10
- Aantal slaapkamers
- 5
- Voorzieningen
- Mechanische ventilatie, alarminstallatie, Zwembad, Airconditioning, Rookkanaal, Schuifpui, Dakraam, Glasvezel kabel



